![]() |
![]() |
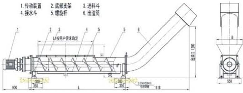
無軸螺旋輸送壓榨機安裝使用維護說明作者:民松螺旋輸送機 來源:本站原創 發布:2018年9月19日 修改:2018年9月19日 所屬分類:新聞中心 訪問統計:4573 無軸螺旋輸送壓榨機安裝使用維護說明 ![]() 一、設備結構要素 螺旋輸送機在現場整機安裝,并對進料口與格柵機卸料口的密封護罩用螺栓進行聯接組裝。 在安裝前,為防止部件損壞而包裝的防護粘貼,不得提前撕離。
二、安裝技術條件 設備安裝前,對設備安裝位置及標高進行檢測,并符合設計要求。 螺旋槽直線度每米允許誤差1mm,全長不超過3mm。 設備就位的安裝基準線與建筑軸線偏差不大于±20mm,與設備平面位置偏差不大于±10mm,與設備高差不大于+20mm/-10mm。 設備的縱向水平度不大于1/1000,相鄰機殼法蘭面連接間隙小于0.5mm。
![]() 三、 場檢驗和調試 安裝后,按技術要求進行檢驗,保證其允差值符合規定的指標。
四、 查和加注潤滑油脂,空載運行2小時,螺旋葉片和槽體正常跑合, 驅動裝置轉動靈活,運行平穩,軸承溫升不超過70℃。
長興民松環保機械廠負責現場負載試驗,物料的輸送功能符合性能指標。密封罩和蓋板處無物料外溢現象。
五、 開機前需檢查如下項目:
a) 減速機潤滑油是否加滿
b) 電器是否連接好
c) 電動機的旋轉方向是否正確
![]() 六、 開機后要聽一下是否有異常聲響,如發現異常聲響應立即停機檢查,一般情況有硬物卡住,造成不銹鋼耙齒彎曲,要及時清除硬物,同時檢查機械過載保護系統是否損壞,要及時將耙齒鞭拉順和維修好過載保護裝置。
七、 機械在正常運轉時,每隔三個月須用黃油槍在各潤滑部位的油嘴中注一次鈣基潤滑脂。
八、 定期或不定期對所有螺栓、安全銷進行檢查,如有松動要立即緊固。
九、 本機設備易損件只要沒有硬物卡住,一般不會出現機械故障。
十、 減速機中的潤滑油須定期更換
a) 蝸輪類減速機的潤滑一般采用蝸輪蝸桿油,牌號見下表(供參考)
輸入功率KW ≤1.5 2.2—7.5 ≥11
潤滑油牌號 220 320或460 460
齒輪類減速機的潤滑一般采用中負荷工業齒輪油,牌號見下表(參考)
輸入功率KW ≤1.5 2.2—7.5 ≥11—22 ≥30
潤滑油牌號 N150或220 N220或N320 N320或N460 N320 460或N680
按以上兩表選用的潤滑油可以滿足一般使用要求。若有特殊要求,活有經驗的用戶,可另行選擇其他牌號的潤滑油,或適當地加入添加劑,小功率時工作機型允許用油脂潤滑。但要注意潤滑油或添加劑對油封(丁晴橡膠)、蝸輪(青銅)的不良影響。環境溫度低時,應降低牌號。
無軸螺旋輸送壓榨機應用
一般來說,潤滑油牌號由小增大時,對減速機性能有如下影響:a、溫度升高(線速度高時程度較明顯);b、效率低(程度較明顯);c、噪聲降低;d、密封性能加強;e、蝸輪或齒輪承載能力增強。
b) 新機在使用一個月(200—300小時)后,應更換新的潤滑油,并處理內部油污。以后可在一半年到一年內更換一次。使用環境惡劣或八小時以上連續工作制的場合,應縮短潤滑油的使用期限。
c) 使用工程中應注意補充新油到要求的油面位置。
d) 嚴禁不同品質的潤滑油混合使用。因為混合時可能發生化學反應,從而降低或失去潤滑作用。
e) 電動機的使用和維護按有關電動機的使用說明書進行。
十一、輸送機故障原因及解決辦法
故障原因 解決辦法
1、減速機有異常聲響 缺少潤滑油 320#或420#潤滑油
2、輸送機有異常 有硬物 停機后檢查 上一文章:螺旋砂水分離器操作維護說明 |