![]() |
![]() |
發布日期:2018-12-24 10:13:10 所屬分類:螺旋輸送機 訪問統計:5029 管式垂直螺旋輸送機專業廠家【10年品牌】_管式垂直螺旋輸送機價格【免費出設計圖】-長興民松環保機械廠
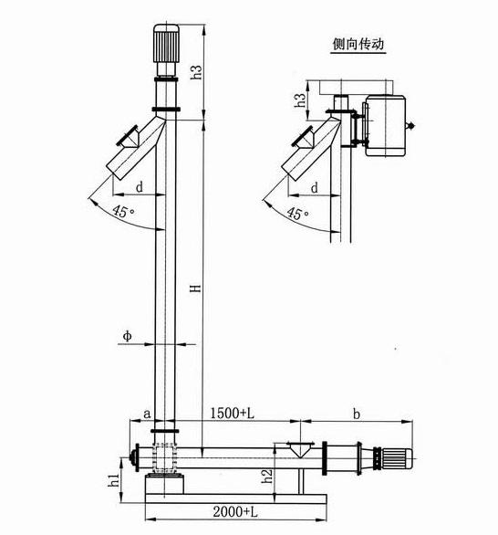
垂直螺旋輸送機旋轉軸上焊的螺旋葉片,葉片的面型根據輸送垂直螺旋輸送機物料的不同有實體面型、帶式面型、葉片面型等型式。垂直螺旋輸送機的螺旋軸在物料運動方向的終端有止推軸承以隨物料給螺旋的軸向反力,在機長較長時,應加中間吊掛軸承。 垂直管式螺旋輸送機特點: 垂直管式螺旋輸送機工作原理:是利用旋轉的螺旋將被輸送的物料沿固定的機殼內推移而進行輸送工作,頭部及尾部軸承移至殼體外,吊軸承采用滑動軸承設有防塵密封裝置,軸瓦一般采用粉末冶金,輸送水泥采用毛氈軸瓦,吊軸和螺旋軸采用滑塊連接。 管式垂直螺旋輸送機應用范圍: 垂直螺旋輸送機適宜垂直或大傾斜角度輸送粉狀、粒狀、非粘性的容重≤1.3t/m3的干燥物料,如糧食,油麩、飼料、化工原料、水泥等。物料溫度一般不能超過80°C,垂直螺旋輸送機不適宜輸送塊狀及粘性的物料。 ![]() 管式垂直螺旋輸送機選型計算:
1、垂直螺旋輸送機可按下面的經驗公式進行計算 Q=8.007·D·3n (m3/n) 式中:Q=輸送量(m3/n); D=螺旋直徑(m); n=螺旋轉速(r/min )。
2、垂直螺旋輸送機的電機功率按下面的經驗公式進行計算 N=0.015258856Q·r·H (Kw) 式中:N=電機功率(Kw );Q=輸送量(m3/n); r=物料容重(t/m3); H=進料口到出料口之間的距離(m )。
3、長度組合: 垂直螺旋輸送機高度(訂貨高度),是指進料口到出料口之間的距離,從2.5米起到15米止,0.5米一檔,用戶可以根據需要選用。
4、驅動裝置: 垂直螺旋輸送機采用上驅動型式。電機安裝在主機的頭部,動力經皮帶傳送到主軸上,從而帶動螺旋運轉。
200型和250型設置單驅動型式,*大配置電機功率15Kw;315型設置單驅動和雙驅動兩種型式。當電機功率小于或等于15Kw時,采用單驅動型式,當電機功率大于15Kw時,則采用雙驅動型式。強迫進料裝置另配驅動裝置在地面安裝,應由生產廠統一設計,用戶自行設計的,由用戶自行負責。
垂直螺旋輸送機的使用與維護 1.螺旋機應無負荷起動,待起動正常后向進口投料。 2.給料時應均勻限額,給料量要合適以免使機器過載。 3.停車前,應停止給料,使機殼內物料輸送完后方可停止。 4.輸送物料內不得混入堅硬大塊,避免螺旋卡死損壞輸送機。 5.在使用中應檢查各部件的聯結禁錮件是否松動,動力是否發熱,聲音是否正常,一旦有異常,立即停車糾正。 6.調速電機起動、運行、停止。可以全壓起動亦可降壓起動,電動機起動后合上控制箱電源開關,逐漸調節速度旋鈕,增加激磁電流,離合器轉速逐漸加至需要運行轉速。停車時把調速旋紐調到零位,再停止拖動電機。 長興民松環保機械廠是一家有著數10年管式垂直螺旋輸送機生產經驗的專業廠家,可以根據客戶環境需求為客戶免費出設計圖,想了解管式垂直螺旋輸送機價格,歡迎咨詢民松廠家,服務熱線:13515726818 上一個:GX型管式螺旋輸送機 下一個:雙管螺旋輸送機 |